Panoramica
Descrizione
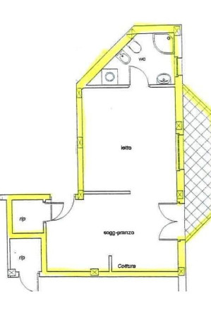
riferimento: PR-GA-TR-CA2-sanpolo-79 In posizione richiestissima grazie alle numerose aziende presenti, ecco un acquisto facile e conveniente perfetto sia per chi desidera far fruttare il proprio denaro investendolo nella direzione giusta, sia per chi è al primo acquisto e desidera una soluzione poco impegnativa ma dal grande potenziale. Bilocale recente e luminosissimo posto a piano alto con ascensore in conteso del 2000. L’appartamento si compone di un’accogliente zona giorno con angolo cottura, ripostiglio e ampia loggia abitabile, camera matrimoniale e bagno finestrato. E’ presente inoltre una comoda cantina con possibilità di acquistare uno spazioso garage a parte. Climatizzato, con riscaldamento autonomo, pronto per essere abitato! Un acquisto semplice, di facile gestione, che ti consentirà di abbandonare finalmente l’affitto, ma di dormire sonni tranquilli. Contattaci subito e fissa la tua consulenza! Per informazioni chiama il 347 4651630 (cellulare diretto) oppure in filiale al numero indicando il riferimento annuncio o l`indirizzo dell`immobile. Grandi Agenzie é un brand del gruppo HouseTree SPA, un’azienda che mette al centro la casa e tutti i servizi collegati, operando con particolare attenzione alla sostenibilità ambientale, all’efficientamento energetico e al consumo responsabile delle risorse. IMPORTANTE: Si precisa che le descrizioni sopra riportate non rappresentano alcun impegno contrattuale. Si avvisa inoltre la spettabile clientela che le caratteristiche tecniche, la disposizione interna e gli accessori indicati potrebbero, in alcuni casi, differire dall’effettivo stato di fatto dell’immobile. A causa delle difformità dei dati pubblicati dai vari portali, la società HouseTree SPA declina ogni responsabilità per eventuali involontarie incoerenze.
Classe Energetica
- Classe energetica: G
- Indice globale di rendimento energetico: 175.00
- Indice di rendimento dell'energia rinnovabile: 175.00
- A+
- A
- B
- C
- D
- E
- F
- 175.00 | Classe energetica GG
- H
- 0521271888
- sanleonardo@grandiagenzie.it
- Via Trento, 42, 43100 Parma PR
Invia una richiesta per questo immobile
Scopri altre soluzioni simili
- €158,000
- €500,000
- €553,000
- €280,000
- €238,000
