Bilocale ristrutturato chiavi in mano: pratico e moderno.
- €114,000
Panoramica
Descrizione
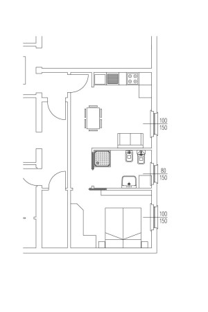
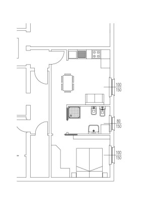
riferimento: PR-GA-TR-CA2-viacagliari14-114 Titolo: Bilocale ristrutturato chiavi in mano: pratico e moderno. Ci sono immobili che richiedono lavori, tempo, pensieri e budget extra. E poi ci sono soluzioni come questa: un bilocale di circa 40 mq in fase di completa ristrutturazione, pensato per essere consegnato pronto da abitare, senza complicazioni e senza sorprese. Siamo nel quartiere San Leonardo, in una posizione estremamente comoda, a due passi da servizi, negozi, collegamenti e tutto ciò che serve nella vita quotidiana. Una zona pratica, dinamica e facilmente gestibile, ideale per chi vuole vivere in città con tutto a portata di mano oppure per chi cerca un investimento concreto, semplice da mettere a reddito e con costi di gestione molto contenuti. L’appartamento si trova al piano rialzato di un piccolo contesto ed è composto da: soggiorno con angolo cottura, camera da letto e bagno. Gli spazi sono essenziali, ben distribuiti e pensati per rispondere ad una richiesta sempre più forte: case funzionali, ristrutturate, facili da mantenere e pronte all’uso. Il riscaldamento autonomo, le basse spese condominiali, la climatizzazione e il solaio completano una proposta che punta dritta alla praticità e al risparmio nel tempo. Un immobile conservativo, intelligente, adatto a una giovane coppia che vuole iniziare senza stress, ma ancora più interessante per chi cerca un appartamento da acquistare come investimento, già ristrutturato e facilmente appetibile sul mercato della locazione. Verrà consegnato chiavi in mano, pronto da abitare o da mettere subito in affitto. Chiama ora e fissa la tua consulenza. Contattaci subito e fissa la tua consulenza Per informazioni chiama il 347 4651630 (cellulare diretto) oppure in filiale al numero 0521 271888, indicando il riferimento annuncio o l`indirizzo dell`immobile. Grandi Agenzie é un brand del gruppo HouseTree SPA, un’azienda che mette al centro la casa e tutti i servizi collegati, operando con particolare attenzione alla sostenibilità ambientale, all’efficientamento energetico e al consumo responsabile delle risorse. IMPORTANTE: Si precisa che le descrizioni sopra riportate non rappresentano alcun impegno contrattuale. Si avvisa inoltre la spettabile clientela che le caratteristiche tecniche, la disposizione interna e gli accessori indicati potrebbero, in alcuni casi, differire dall’effettivo stato di fatto dell’immobile. A causa delle difformità dei dati pubblicati dai vari portali, la società HouseTree SPA declina ogni responsabilità per eventuali involontarie incoerenze.
Classe Energetica
- Classe energetica: D
- Indice globale di rendimento energetico: 175.00
- Indice di rendimento dell'energia rinnovabile: 175.00
- A+
- A
- B
- C
- 175.00 | Classe energetica DD
- E
- F
- G
- H
- 0521271888
- sanleonardo@grandiagenzie.it
- Via Trento, 42, 43100 Parma PR
Invia una richiesta per questo immobile
