FIMON – Porzione di villa storica al grezzo
- €180,000
FIMON – Porzione di villa storica al grezzo
- €180,000
Panoramica
Descrizione
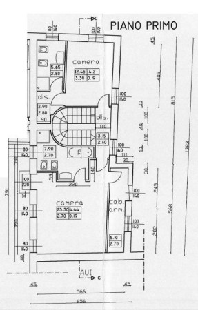
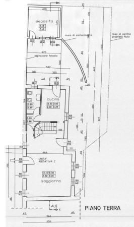
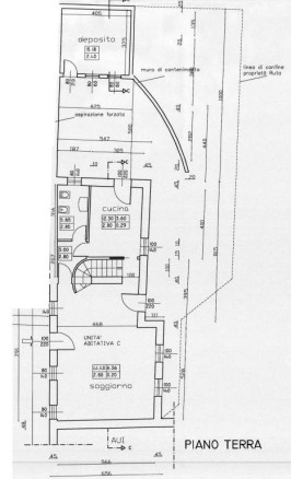
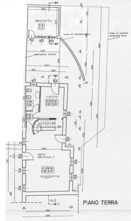
Situato ai piedi della fascia collinare di Arcugnano, più esattamente in località Buzzolati a Fimon, questo complesso seicentesco, sapientemente ristrutturato nel 1847 e successivamente nel 1915, si articola in un corpo padronale, una barchessa ed una colombara. L’unità immobiliare oggetto della vendita consiste in una porzione terra/tetto del corpo principale della villa, quella più interna rispetto alla strada. La distribuzione interna degli ambienti è molto funzionale e si sviluppa su tre livelli, più precisamente: ingresso su generosa zona living, cucina separata abitabile con accesso diretto al giardino interno di proprietà esclusiva che collega l’unità principale alla graziosa depandace di circa 15 metri quadrati. Un bagno ospiti. Al piano primo troviamo due camere, entrambe con bagno privato finestrato e stanza armadi. Al terzo ed ultimo piano grande mansarda con bagno privato e cabina armadio. Tutta l’abitazione presenta travi a vista e balconi alla vicentina. I lavori di ristrutturazione iniziati nel 2009, riguardanti la parte strutturale, il tetto, i solai e le travi, hanno portato l’unità allo stato attuale: oggi si presenta allo grezzo e necessita di essere finita sia per quanto riguarda l’impiantistica che i rivestimenti mentre i sottoservizi sono già presenti. Due posti auto assegnati nella corte comune. L’area esterna comune è di circa 800 metri quadrati. Peculiarità: lontano dai rumori e dal caos cittadino ma non isolato, a soli dieci minuti in auto dalla città, fermata svt davanti a casa. — Per maggiori informazioni contattare l’ufficio al tel. 0444 305077.
- 0444305077
- vicenza@grandiagenzie.it
- Corso Santi Felice e Fortunato, 257/s, 36100 Vicenza VI
Invia una richiesta per questo immobile
Scopri altre soluzioni simili
- €158,000
- €58,000
- €320,000
- €250,000
- €238,000
- €99,000
