Il bilocale perfetto: clima, sfoghi esterni e posto auto!
- €650
Il bilocale perfetto: clima, sfoghi esterni e posto auto!
- €650
Panoramica
Descrizione
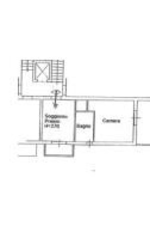
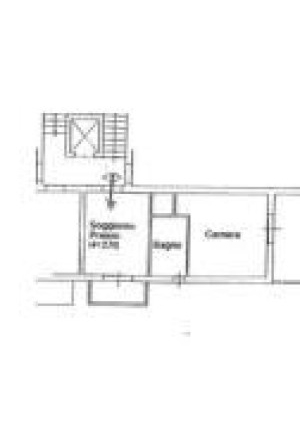
Perfetto sia per giovane coppia sia per lavoratore/laureando dell’Ospedale. Contatta il numero 3471438549 inviando un SMS su WHATSAPP con il RIFERIMENTO “PALACE-bilo-1°P-ViaUghi-RB” per richiedere informazioni e fissare un appuntamento! Dal mese di maggio disponiamo di questo luminoso bilocale di 48 mq in bel contesto condominiale, consegnato completamente arredato. L’immobile è formato da soggiorno con angolo cottura e ampio balcone, una camera matrimoniale con affaccio sul secondo sfogo esterno, il bagno finestrato con box doccia, accessoriato di lavatrice. Completo di cantina e posto auto condominiale. Il riscaldamento è termoautonomo con spese condominiali mensili contenute. Si propone un contratto 4+4, sono richieste due mensilità per il deposito cauzionale. RIFERIMENTO: PALACE-bilo-1°P-ViaUghi-RB- Gentilmente, PER INFO SCRIVERE SU WHATSAPP al numero 3471438549 SPECIFICANDO IL RIFERIMENTO ANNUNCIO: verrete contattati il prima possibile. IMPORTANTE: si avvisa la spettabile clientela che le caratteristiche tecniche, disposizione interna e gli accessori indicati potrebbero in alcuni casi essere diverse dall’effettivo stato di fatto dell’immobile. A causa delle difformità dei dati pubblicati dai vari portali, la società Studio Parma Nord S.r.l. declina ogni responsabilità per eventuali involontarie incoerenze. Si precisa che le descrizioni sopra riportante non rappresentano alcun impegno contrattuale.
Classe Energetica
- Classe energetica: E
- Indice globale di rendimento energetico: 175.00
- Indice di rendimento dell'energia rinnovabile: 175.00
- A+
- A
- B
- C
- D
- 175.00 | Classe energetica EE
- F
- G
- H
- 0521508034
- sanlazzaro@grandiagenzie.it
- Via Emilia Est, 31/a, 43121 Parma PR
Invia una richiesta per questo immobile
