Il tuo nuovo ed elegante ufficio ti aspetta!
- €900
Il tuo nuovo ed elegante ufficio ti aspetta!
- €900
Panoramica
Descrizione
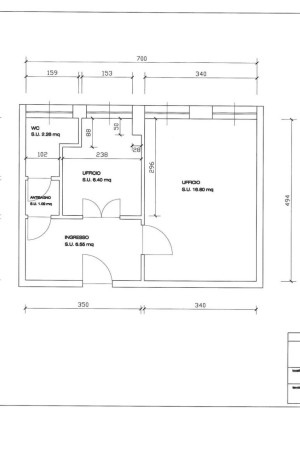
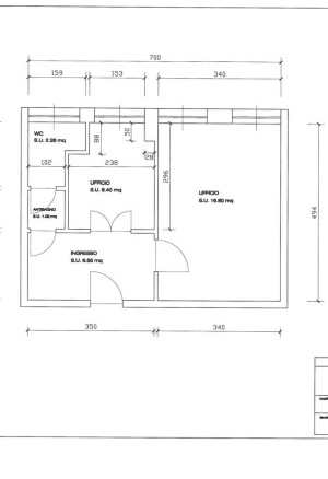
Scrivi un messaggio al numero 3471438549 su WHATSAPP con il RIFERIMENTO “PALACE-ufficio-ViaVerdi-RB” per richiedere informazioni e fissare un appuntamento! Ci trovamo in un complesso molto grande composto da unità abitative e diversi studi professionali e di rappresentanza, ampio ingresso con portinaio durante le ore d’ufficio, il piano ammezato si raggiunge comodamente a piedi o con ascensore. L’immobile è suddiviso in un primo spazio di accoglienza, due stanze separate ad uso ufficio e servizio finestrato con antibagno. Tutto da arredare e personalizzare soddisfacendo le necessità della tua attività professionale. Gli spazi sono luminosi, gli infissi sono dotati di doppi vetri, il riscaldamento è centralizzato, si propone contratto commerciale 6+6 con 2 mensilità di deposito iniziale e 6 mesi per la disdetta anticipata. RIFERIMENTO “PALACE-ufficio-ViaVerdi-RB” – Gentilmente, PER INFO SCRIVERE SU WHATSAPP al numero 3471438549 SPECIFICANDO IL RIFERIMENTO ANNUNCIO: verrete contattati il prima possibile. Grandi Agenzie é un brand del gruppo HouseTree SpA, un’azienda che mette al centro la casa e tutti i servizi collegati, operando con particolare attenzione alla sostenibilità ambientale, all’efficientamento energetico e al consumo responsabile delle risorse. IMPORTANTE: Si precisa che le descrizioni sopra riportate non rappresentano alcun impegno contrattuale. Si avvisa inoltre la spettabile clientela che le caratteristiche tecniche, la disposizione interna e gli accessori indicati potrebbero, in alcuni casi, differire dall’effettivo stato di fatto dell’immobile. A causa delle difformità dei dati pubblicati dai vari portali, la società HouseTree SpA declina ogni responsabilità per eventuali involontarie incoerenze.
- 0521508034
- sanlazzaro@grandiagenzie.it
- Via Emilia Est, 31/a, 43121 Parma PR
Invia una richiesta per questo immobile
