Il tuo rifugio tra natura, privacy e comodità!!
- €420,000
Il tuo rifugio tra natura, privacy e comodità!!
- €420,000
Panoramica
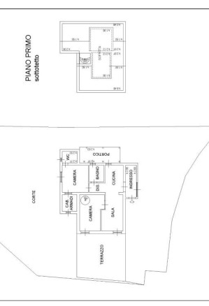
Descrizione
Tra le dolci colline dell’Appennino Parmense vieni a scoprire questo angolo di paradiso a soli 4,5Km da Berceto, a 5 Km dalla stazione di Ghiare di Berceto, a 7 km dall’uscita autostradale ma, soprattutto, a meno di un’ora dalle coste delle cinque terre e dalle belle spiagge della Versiglia. Questa abitazione rappresenta Berceto, conosciuto come “il paese di montagna più vicino al mare”, è il punto di partenza ideale per scoprire le bellezze locali, della Toscana e della Liguria. La Villa proposta è in stile moderno ed è adatta sia come residenza fissa che come residenza estiva; dimora calda, con riscaldamento autonomo a metano, luminosa e ricca di fascino, completamente ristrutturata con materiali di qualità, in ottimo stato di conservazione, disposta su 2 livelli: Piano principale (circa 100 mq): – ingresso con ampia vetrata panoramica che accede direttamente nella cucina con penisola, lavastoviglie, frigorifero, forno e piano cottura; – zona soggiorno e zona relax ti regaleranno momenti conviviali con i tuoi ospiti; – ampio bagno principale con doccia – stanza matrimoniale dotata di bagno privato e comoda cabina armadio Piano superiore (circa 60 mq) Mansarda open space con tetto in legno, spazio relax con TV 50 pollici, spazio palestra con cyclette, tapis roulant, ufficio, divano letto matrimoniale e un letto singolo. La stanza ha due finestre panoramiche, una verso la vallata del Manubiola e una verso il passo della Cisa (visibile anche il campanile della chiesetta del passo Cisa). La casa è completamente circondata da un giardino di circa 400 m2 che comprende ampio portico posizionato a sud, con tavolo da pranzo, barbecue, solarium e piscina idromassaggio. La posizione a sud garantisce nelle giornate di sole temperature molto gradevoli anche nei mesi invernali. Nella zona nord si trova un terrazzo di circa 40m2 con zona relax e un salotto ideale per gli aperitivi serali. La proprietà è completata da 2 box auto e da una casetta in legno per il deposito attrezzi e una in alluminio per lo stoccaggio della legna per la stufa. Tutti gli attrezzi necessari per il mantenimento del giardino vengono compresi nell’acquisto della villa. Inoltre l’abitazione è dotata di sistemi anti intrusione che ne permettono il controllo anche a distanza. La località è raggiunta dalla fibra, ideale anche per esigenze di smart working. La villa viene ceduta con gran parte del mobilio, tutti gli elettrodomestici di ultima generazione, 3 TV in modo da poter essere abitata da subito. La villa è situata in un bellissimo borgo medioevale a 500 mt di altezza, circondata da paesaggi unici e affascinanti ed è situata in posizione panoramica rialzata rispetto alla strada del paese in un contesto molto tranquillo dove è garantita la massima privacy. Rif:EZ_420Roccaprebalza Se senti che questo è il luogo giusto per il tuo equilibrio tra vita e tempo libero, contattaci al 0521.632100 IMPORTANTE: si avvisa la spettabile clientela che le caratteristiche tecniche, disposizione interna e gli accessori indicati potrebbero in alcuni casi essere diverse dall’effettivo stato di fatto dell’immobile. A causa delle difformità dei dati pubblicati dai vari portali, la società HouseTree spa. declina ogni responsabilità per eventuali involontarie incoerenze. Si precisa che le descrizioni sopra riportante non rappresentano alcun impegno contrattuale.
Classe Energetica
- Classe energetica: G
- Indice globale di rendimento energetico: 175.00
- Indice di rendimento dell'energia rinnovabile: 175.00
- A+
- A
- B
- C
- D
- E
- F
- 175.00 | Classe energetica GG
- H
- 0521 632100
- pellico@grandiagenzie.it
- Via Silvio Pellico, 5c, 43125 Parma PR
Invia una richiesta per questo immobile
Scopri altre soluzioni simili
- €110,000
- €150,000
- €88,000
- €160,000
- €240,000
