La casa che cresce insieme alla tua famiglia
- €429,000
La casa che cresce insieme alla tua famiglia
- €429,000
Panoramica
Descrizione
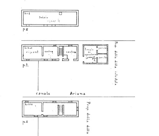
RIF: PR-GA-MO-langhirano-LI Se stai cambiando casa è perché senti che vi serve di più. Più spazio, più indipendenza, più possibilità. Questa porzione di bifamiliare in completa ristrutturazione ti offre proprio questo: una base solida, pronta a trasformarsi nella casa su misura per la tua nuova fase di vita. Consegna febbraio 2027, senza spese condominiali e con ambienti da modellare intorno alle vostre esigenze reali. Qui non compri solo metri quadri, ma libertà di scegliere come vivere ogni giorno. 120 mq su due livelli oltre solaio: lo spazio che oggi ti manca diventa finalmente organizzato, funzionale, adatto a una famiglia che cresce o a un figlio che desidera la propria autonomia. – Piano terra con ingresso, cucina e soggiorno: puoi immaginare una zona giorno aperta e conviviale dove ritrovarvi la sera, o ambienti più distinti per chi ama ordine e tranquillità. La cantina aggiunge praticità concreta per tutto ciò che non vuoi in vista. – Primo piano completamente personalizzabile: camere, studio, cabina armadio o doppi servizi. Non devi adattarti a una casa già decisa da altri, ma puoi costruire la distribuzione intorno alle vostre abitudini quotidiane. – Monolocale indipendente di 50 mq incluso nella vendita: perfetto per un figlio adulto che vuole i suoi spazi senza allontanarsi, per un genitore, oppure per creare un reddito extra mantenendo la privacy di tutti. Una soluzione che offre flessibilità oggi e valore nel tempo. Con posto auto di proprietà e nessuna spesa condominiale: indipendenza reale e gestione più serena dei costi familiari. Se senti che è arrivato il momento di fare un salto di qualità per la tua famiglia, non rimandare: contattaci e scopri come trasformare questa casa nel vostro prossimo capitolo. Grandi Agenzie é un brand del gruppo HouseTree SPA, un’azienda che mette al centro la casa e tutti i servizi collegati, operando con particolare attenzione alla sostenibilità ambientale, all’efficientamento energetico e al consumo responsabile delle risorse. IMPORTANTE: Si precisa che le descrizioni sopra riportate non rappresentano alcun impegno contrattuale. Si avvisa inoltre la spettabile clientela che le caratteristiche tecniche, la disposizione interna e gli accessori indicati potrebbero, in alcuni casi, differire dall’effettivo stato di fatto dell’immobile. A causa delle difformità dei dati pubblicati dai vari portali, la società HouseTree SPA declina ogni responsabilità per eventuali involontarie incoerenze.
- 0521960231
- parmasud@grandiagenzie.it
- Via Montanara, 4, 43100 Parma PR
Invia una richiesta per questo immobile
