Pratico trilocale ristrutturato e venduto arredato.
- €175,000
Pratico trilocale ristrutturato e venduto arredato.
- €175,000
Panoramica
Descrizione
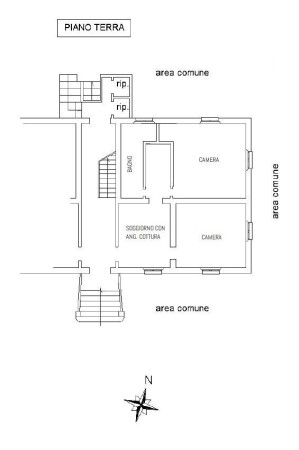
C’è un tipo di immobile che un investitore esperto riconosce subito: è quello che ti garantirà una rendita costante già dal primo giorno! In quartiere Cavagnari, in una posizione strategica per chi cerca alloggi in affitto, soprattutto affitti brevi ad alta rotazione, questo appartamento è esattamente così, con tutti i servizi sotto casa e collegamenti rapidi con la tangenziale. Parliamo di un trilocale di 75 mq completamente ristrutturato, già pronto, già arredato, già pensato per essere messo a reddito senza passaggi intermedi. L’ingresso si apre in un soggiorno con angolo cottura a vista, proseguendo troviamo due camere matrimoniali e un bagno finestrato. Ma qui c’è un plus che fa la differenza: la possibilità concreta di ridisegnare gli spazi e trasformarlo in un ampio bilocale con cucina separata, una soluzione molto richiesta nel mercato degli affitti. A rendere l’investimento ancora più interessante ci pensano i dettagli: cantina di ben 35 mq, rara e sfruttabile, posto auto condominiale nel cortile interno, climatizzazione, doppi vetri e porta blindata. Il tutto al piano rialzato, con riscaldamento autonomo e spese condominiali bassissime, quindi massimo controllo dei costi e margini più alti. E la parte migliore? Viene venduto completamente arredato, con uno stile moderno e pronto per essere utilizzato subito. Nessun lavoro, nessuna attesa, nessuna spesa extra: qui compri, pubblichi l’annuncio e inizi ad incassare. Se stai cercando un appartamento pratico, in una zona molto richiesta e una rendita concreta, questa è una di quelle opportunità che meritano di essere valutate subito. Perché gli investimenti migliori, si stanno già facendo avanti! Rif. Via La Spezia p.rialzato CM Grandi Agenzie é un brand del gruppo HouseTree SPA, un’azienda che mette al centro la casa e tutti i servizi collegati, operando con particolare attenzione alla sostenibilità ambientale, all’efficientamento energetico e al consumo responsabile delle risorse. IMPORTANTE: Si precisa che le descrizioni sopra riportate non rappresentano alcun impegno contrattuale. Si avvisa inoltre la spettabile clientela che le caratteristiche tecniche, la disposizione interna e gli accessori indicati potrebbero, in alcuni casi, differire dall’effettivo stato di fatto dell’immobile. A causa delle difformità dei dati pubblicati dai vari portali, la società HouseTree SPA declina ogni responsabilità per eventuali involontarie incoerenze.
Classe Energetica
- Classe energetica: F
- Indice globale di rendimento energetico: 175.00
- Indice di rendimento dell'energia rinnovabile: 175.00
- A+
- A
- B
- C
- D
- E
- 175.00 | Classe energetica FF
- G
- H
- 0521508034
- sanlazzaro@grandiagenzie.it
- Via Emilia Est, 31/a, 43121 Parma PR
Invia una richiesta per questo immobile
