QUINTO VICENTINO – Villetta a schiera con giardino privato e garage

  • €238,000

QUINTO VICENTINO – Villetta a schiera con giardino privato e garage

  • €238,000

QUINTO VICENTINO – Villetta a schiera con giardino privato e garage

  • €238,000
Villa a Schiera

QUINTO VICENTINO – Villetta a schiera con giardino privato e garage

  • €238,000

QUINTO VICENTINO – Villetta a schiera con giardino privato e garage

    VI-GMV149

    Panoramica

    3
    2
    199
    1980

    Descrizione

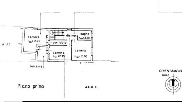
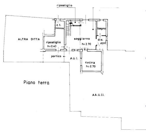
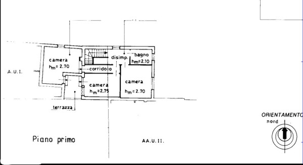
    Nel cuore di Quinto Vicentino, in una tranquilla strada chiusa riservata ai soli residenti, proponiamo in vendita una villetta a schiera centrale disposta su due livelli fuori terra, completa di giardino privato e garage. Una soluzione ideale per chi desidera vivere vicino al centro del paese senza rinunciare alla pace, alla privacy e al contatto con la natura. — L’abitazione accoglie tramite un cancelletto pedonale condominiale che conduce a un grazioso portico, perfetto per pranzi e cene all’aperto in compagnia di famiglia e amici. Entrando, si viene subito colpiti dalla grande luminosità del soggiorno, un ambiente caldo e accogliente impreziosito da un meraviglioso camino e con accesso diretto al giardino privato sul retro, ulteriore spazio ideale da vivere nei momenti di relax o convivialità. Al piano terra troviamo inoltre una cucina abitabile separata, pratica e ben organizzata, una comoda stanza dotata di secondo camino e forno per le pizze, perfetta per chi ama ricevere ospiti o godersi ambienti versatili tutto l’anno. Completa il piano un particolare bagno finestrato con vasca e due utili ripostigli, elementi che rendono la casa ancora più funzionale nella vita quotidiana. Salendo al piano primo attraverso la scala interna posta nel soggiorno, si sviluppa la zona notte, ben distribuita e pensata per offrire spazi generosi. Qui trovano posto tre ampie camere da letto, due delle quali con accesso condiviso a un terrazzino, oltre a un secondo bagno finestrato con doccia. — A completare la soluzione troviamo il garage, comodo e facilmente accessibile. L’immobile si presenta particolarmente interessante anche per i numerosi interventi eseguiti, che ne valorizzano comfort, efficienza e manutenzione generale. È stata infatti installata una nuova caldaia a condensazione Immergas con bollitore a stratificazione, in grado di garantire acqua calda sanitaria illimitata, con estensione della garanzia totale fino a 10 anni. Il camino da riscaldamento è stato sostituito con un nuovo modello certificato 5 stelle top, regolarmente intubato e collaudato, mentre tutti i radiatori esistenti sono stati dotati di nuove valvole termostatiche. Sono stati inoltre sistemati gli intonaci ammalorati mediante demolizione e realizzazione di intonaco macroporoso con successiva rasatura idonea. È stato eseguito anche il divisorio della cantina a 180 cm come da mappali. Il tetto è stato oggetto di rifacimento con rimozione dei coppi, pulizia, ripristino della guaina dove necessario e riposizionamento del manto con fornitura dei coppi mancanti. Anche le parti esterne hanno beneficiato di interventi di sistemazione, con ripristino delle pendenze, stesura di ghiaino nelle zone carraie e manutenzione del verde con taglio dell’erba. — Una casa in target per famiglie, per chi cerca spazi veri da vivere e per chi desidera una soluzione abitativa inserita in un contesto riservato, curato e comodo ai principali servizi del paese. Per maggiori informazioni contattare l’ufficio al tel. 0444 305077.

    Classe Energetica

    • Classe energetica: C
    • A+
    • A
    • B
    • | Classe energetica C
      C
    • D
    • E
    • F
    • G
    • H

    Invia una richiesta per questo immobile

    Scopri altre soluzioni simili

    • €149,000
    Appartamento
    2
    1
    1
    79
    2004
    • €245,000
    Casa indipendente
    308
    1930
    • €143,000
    Appartamento
    2
    1
    99
    1970
    • €205,000
    Villa a Schiera
    3
    3
    172
    1900
    • €153,000
    Appartamento
    2
    1
    116
    1984

    Compare listings

    Compare

    PARMA - Se cerchi la tranquillità del verde, ma non vuoi rinunciare alla comodità della città.