SOVIZZO – Ampio rustico affiancato con giardino privato
- €260,000
SOVIZZO – Ampio rustico affiancato con giardino privato
- €260,000
Panoramica
Descrizione
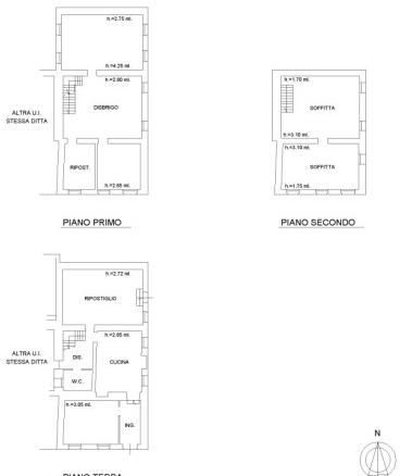
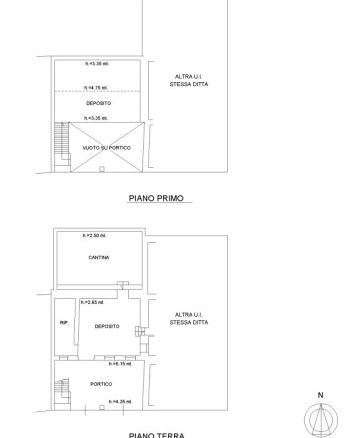
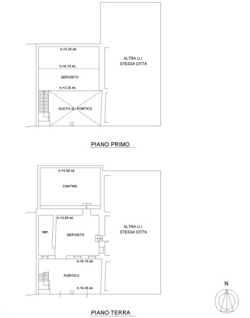
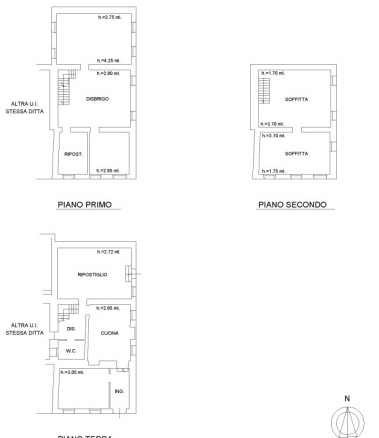
Ci troviamo a Sovizzo, più precisamente a Monte San Lorenzo; la località offre non solo una vista spettacolare, ma anche pace e tranquillità. Potrete godere di lunghe passeggiate rigeneranti, escursioni in bicicletta e momenti di relax all’aria aperta, senza rinunciare alla comodità dei servizi e delle vie di comunicazione nelle vicinanze. — Siamo a proporvi un rustico affiancato su tre livelli fuori terra, in meravigliosa zona collinare. Al piano terra veniamo accolti da una spaziosa cucina abitabile dotata di un antico camino del 1600, perfetto per riunire famiglia e amici. Adiacente alla cucina, un luminoso soggiorno separato offre uno spazio confortevole e accogliente per il relax e l’intrattenimento. Inoltre, troverete un pratico disimpegno e un bagno di servizio, perfetti per la vita quotidiana. Salendo al primo piano, la zona notte, composta da tre camere matrimoniali e un bagno finestrato. Le camere da letto offrono un’oasi di pace e tranquillità, con ampi spazi e luminosità naturale. — Inoltre, questa proprietà offre interessanti possibilità di personalizzazione e ampliamento. Una parte è stata ristrutturata negli anni 2000, mentre una barchessa da ristrutturare offre la possibilità di creare due unità abitative indipendenti, perfette per ospitare famiglia o amici. Non lasciatevi sfuggire questa straordinaria opportunità di vivere in un ambiente unico e affascinante. Le visite saranno organizzate solamente dopo un appuntamento informativo in agenzia con l’agente incaricato su richiesta della proprietà. Per maggiori informazioni telefonare in ufficio al tel. 0444 305077.
Classe Energetica
- Classe energetica: E
- A+
- A
- B
- C
- D
- | Classe energetica EE
- F
- G
- H
- 0444305077
- vicenza@grandiagenzie.it
- Corso Santi Felice e Fortunato, 257/s, 36100 Vicenza VI
Invia una richiesta per questo immobile
Scopri altre soluzioni simili
- €365,000
- €130,000
- €463,000
- €130,000
- €275,000
