- Home
- Montecchio Emilia
- Spazi generosi, emozioni infinite
Spazi generosi, emozioni infinite
- €280,000
Spazi generosi, emozioni infinite
- €280,000
Panoramica
Descrizione
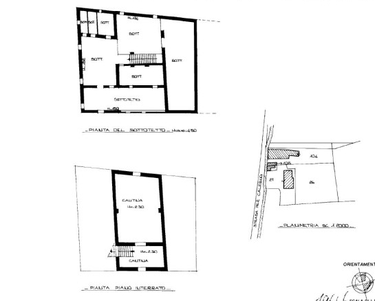
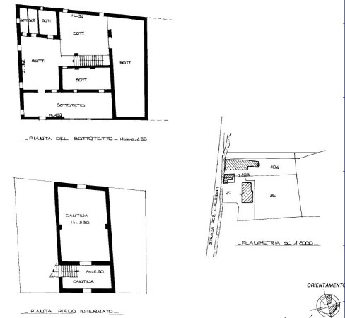
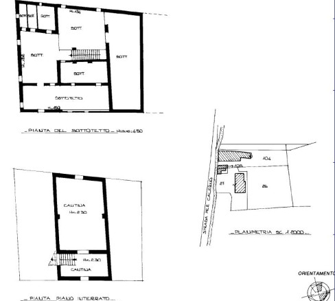
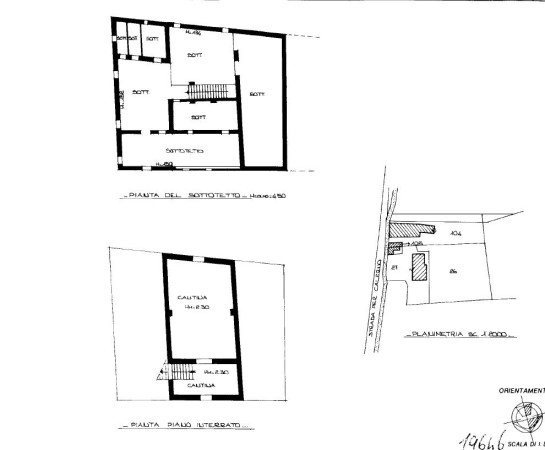
RIF. PR-GA-AZ-StradaCalerno280-AP Immagina una casa dove ogni angolo racconta una storia e ogni stanza accoglie i tuoi sogni. Questa casa indipendente di 596 mq, distribuita su più livelli, è perfetta per una famiglia numerosa che desidera spazio, libertà e comfort. Dieci camere luminose, un ampio soggiorno dove ritrovarsi, una cucina abitabile pronta per i pranzi e le cene in famiglia, tre bagni, una mansarda e una cantina offrono versatilità e praticità per ogni esigenza. A completare la proprietà, 297 mq di deposito offrono infinite possibilità: un laboratorio creativo, uno spazio hobby o un’area per i progetti più ambiziosi. Il garage garantisce comodità e sicurezza, mentre l’ampio giardino di 3.000 mq diventa un luogo magico dove i bambini possono correre liberi, giocare, esplorare e vivere all’aria aperta, e dove la famiglia può godere di momenti di relax, feste all’aperto e attività in mezzo alla natura. Parzialmente ristrutturata nel 2008 e dotata di riscaldamento autonomo, questa casa unisce il fascino degli spazi tradizionali con il comfort moderno, offrendo un ambiente già vivibile ma pronto ad essere personalizzato secondo i gusti e le esigenze di chi la abiterà. È una casa pensata per crescere insieme, creare ricordi indimenticabili e vivere ogni giorno con gioia e libertà, dove ogni dettaglio invita a sentirsi davvero a casa. Per info contattare il referente al num: 349/5458176 RIF. PR-GA-AZ-StradaCalerno280-AP Grandi Agenzie é un brand del gruppo HouseTree SPA, un’azienda che mette al centro la casa e tutti i servizi collegati, operando con particolare attenzione alla sostenibilità ambientale, all’efficientamento energetico e al consumo responsabile delle risorse. IMPORTANTE: Si precisa che le descrizioni sopra riportate non rappresentano alcun impegno contrattuale. Si avvisa inoltre la spettabile clientela che le caratteristiche tecniche, la disposizione interna e gli accessori indicati potrebbero, in alcuni casi, differire dall’effettivo stato di fatto dell’immobile. A causa delle difformità dei dati pubblicati dai vari portali, la società HouseTree SPA declina ogni responsabilità per eventuali involontarie incoerenze.
Classe Energetica
- Classe energetica: G
- Indice globale di rendimento energetico: 175.00
- Indice di rendimento dell'energia rinnovabile: 175.00
- A+
- A
- B
- C
- D
- E
- F
- 175.00 | Classe energetica GG
- H
- 0521200956
- oltretorrente@grandiagenzie.it
- D'Azeglio, 120/a, Parma, 43125 PR
Invia una richiesta per questo immobile
Scopri altre soluzioni simili
- €80,000
- €215,000
- €160,000
- €620,000
- €120,000
