Trilocale 85mq moderno e di design! Via Solari _Parma
- €250,000
Trilocale 85mq moderno e di design! Via Solari _Parma
- €250,000
Panoramica
Descrizione
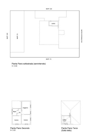
La casa di design dove ogni dettaglio ha senso!! Non è facile trovare una casa che unisca davvero estetica e funzionalità. Qui invece entri e capisci subito che ogni scelta è stata fatta con criterio: luce naturale, materiali caldi, spazi che funzionano nella vita di tutti i giorni. Questo trilocale di 85mq è la soluzione perfetta se vuoi smettere di adattarti e iniziare a vivere in un ambiente che ti rappresenta davvero. Al secondo piano, senza ascensore, trovi quella tranquillità e riservatezza che spesso manca, con ambienti che respirano e ti fanno stare bene fin dal primo momento. • Zona living luminosa e ariosa, dove la luce entra generosa dalle finestre e rende ogni momento – dal pranzo veloce alla sera sul divano – più piacevole • Spazio giorno ben organizzato, perfetto per condividere senza rinunciare all’ordine e all’equilibrio estetico • Due camere matrimoniali essenziali e rilassanti, pensate per staccare davvero a fine giornata • Bagno dal carattere deciso, con uno stile riconoscibile che trasforma la routine in un momento curato • Ristrutturazione completa con finiture di pregio: non devi sistemare nulla, puoi solo iniziare a viverla • Mansarda versatile, ideale come studio, spazio creativo o zona dedicata ai figli che crescono • Doppio garage: una comodità concreta che semplifica ogni rientro a casa e libera la mente dal parcheggio • Zona Molinetto, Via Solari: hai tutto vicino, quindi meno tempo perso e più tempo per te e la tua famiglia Questa casa è per te se cerchi qualcosa che vada oltre il “carino” e punti dritto a uno stile di vita più curato, semplice e appagante. Se senti che è esattamente il tipo di casa in cui vuoi vivere ogni giorno, contattaci al 0521.632100 Rif: RL_250Solari IMPORTANTE: si avvisa la spettabile clientela che le caratteristiche tecniche, disposizione interna e gli accessori indicati potrebbero in alcuni casi essere diverse dall’effettivo stato di fatto dell’immobile. A causa delle difformità dei dati pubblicati dai vari portali, la società HouseTree spa. declina ogni responsabilità per eventuali involontarie incoerenze. Si precisa che le descrizioni sopra riportante non rappresentano alcun impegno contrattuale.
- 0521 632100
- pellico@grandiagenzie.it
- Via Silvio Pellico, 5c, 43125 Parma PR
Invia una richiesta per questo immobile
Scopri altre soluzioni simili
