Trilocale da rimodernare come meglio credi. Cantina e garage
- €150,000
Trilocale da rimodernare come meglio credi. Cantina e garage
- €150,000
Panoramica
Descrizione
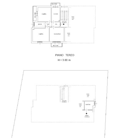
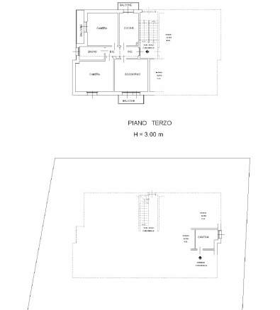
Al terzo piano di un curato condominio anni ’70 recentemente rinnovato nelle parti comuni, balconi e facciata, ti aspetta un trilocale di 88 mq pronto a trasformarsi nella casa che hai sempre desiderato. Senza ascensore, sì — ma con quella piacevole sensazione di riservatezza e tranquillità che solo un piano alto sa regalare. L’ingresso accompagna verso una cucina abitabile, perfetta per tornare a vivere il gusto della convivialità, e un soggiorno luminoso che invita a immaginare serate in relax o momenti condivisi con chi ami. Le due camere da letto offrono spazio e versatilità: stanza padronale, cameretta, bagno e studio… qui puoi dare forma alle tue esigenze. Tre balconi regalano luce e sfoghi esterni da vivere ogni giorno. A completare la proprietà: cantina, garage e una comoda soffitta al quinto piano — spazio prezioso per tutto ciò che vuoi tenere con te. Riscaldamento autonomo e aria condizionata garantiscono comfort in ogni stagione. È una casa da ristrutturare, è vero. Ma soprattutto è una casa da immaginare, progettare, rendere tua in ogni dettaglio. Se cerchi un immobile con carattere, solidità e grandi potenzialità, questa è l’occasione giusta per creare qualcosa di unico. Non è solo un appartamento. È il progetto della tua prossima vita. Ti piace? Chiama l’agente di riferimento per fissare un primo appuntamento in ufficio. Rif: PR-CF-TO-strquarta150-MGB Per ulteriori informazioni contattaci al 388/3527664 Grandi Agenzie é un brand del gruppo HouseTree SpA, un’azienda che mette al centro la casa e tutti i servizi collegati, operando con particolare attenzione alla sostenibilità ambientale, all’efficientamento energetico e al consumo responsabile delle risorse. IMPORTANTE: Si precisa che le descrizioni sopra riportate non rappresentano alcun impegno contrattuale. Si avvisa inoltre la spettabile clientela che le caratteristiche tecniche, la disposizione interna e gli accessori indicati potrebbero, in alcuni casi, differire dall’effettivo stato di fatto dell’immobile. A causa delle difformità dei dati pubblicati dai vari portali, la società HouseTree SpA declina ogni responsabilità per eventuali involontarie incoerenze.
Classe Energetica
- Classe energetica: E
- Indice globale di rendimento energetico: 98.25
- Indice di rendimento dell'energia rinnovabile: 98.25
- A+
- A
- B
- C
- D
- 98.25 | Classe energetica EE
- F
- G
- H
- 0521508034
- info@grandiagenzie.it
- Via Emilia Est, 31/a, 43121 Parma PR
Invia una richiesta per questo immobile
Scopri altre soluzioni simili
- €215,000
- €80,000
- €160,000
- €620,000
- €120,000
