Trilocale da rimodernare con cantina e garage.
- €256,000
Trilocale da rimodernare con cantina e garage.
- €256,000
Panoramica
Descrizione
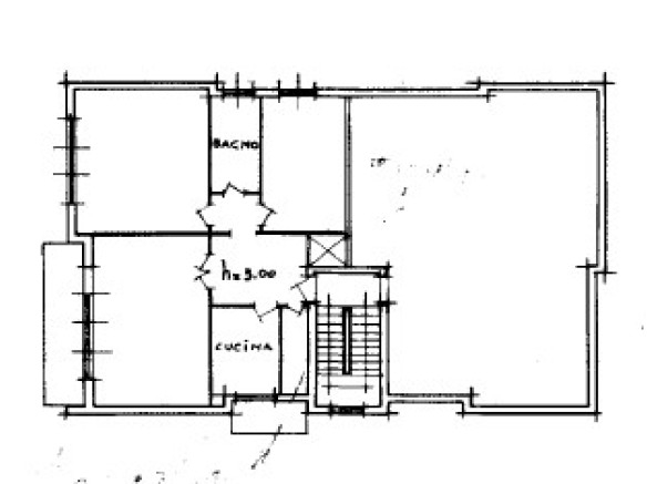
C’è un luogo che aspetta solo di tornare a vivere. Uno spazio autentico, dove ogni ambiente racconta il potenziale di una nuova storia da scrivere. Al secondo e ultimo piano di una palazzina degli anni ’60, questo trilocale di generose dimensioni (circa 120 mq) accoglie con ambienti ampi, luminosi e ben distribuiti. L’ingresso introduce a una casa che conserva il fascino delle costruzioni solide di una volta: una cucina abitabile con balcone, perfetta per iniziare la giornata con la luce del mattino, e un soggiorno con secondo balcone. La zona notte, ben separata, offre due spaziose camere matrimoniali, un bagno e una comoda lavanderia, con la possibilità di realizzare un secondo servizio, adattando così gli spazi alle esigenze moderne. L’immobile si presenta da ristrutturare: una tela bianca pronta ad accogliere il tuo stile, le tue idee, la tua visione di casa. Il riscaldamento è autonomo, è già presente la predisposizione per l’aria condizionata e le spese condominiali sono contenute. A completare la proprietà, una cantina e un garage, elementi sempre più preziosi per comfort e praticità. Importante valore aggiunto: facciata e balconi sono stati recentemente rinnovati, garantendo un contesto esterno curato e senza interventi imminenti. Una casa per chi sa guardare oltre, per chi cerca spazi veri da trasformare in qualcosa di unico. Una casa da immaginare, progettare e vivere. Ti piace? Chiama l’agente di riferimento per fissare un primo appuntamento in ufficio. Rif: PR-CF-TO-donatello-FGT Per ulteriori informazioni contattaci al 327/4684460 Grandi Agenzie é un brand del gruppo HouseTree S. p. A, un’azienda che mette al centro la casa e tutti i servizi collegati, operando con particolare attenzione alla sostenibilità ambientale, all’efficientamento energetico e al consumo responsabile delle risorse. IMPORTANTE: Si precisa che le descrizioni sopra riportate non rappresentano alcun impegno contrattuale. Si avvisa inoltre la spettabile clientela che le caratteristiche tecniche, la disposizione interna e gli accessori indicati potrebbero, in alcuni casi, differire dall’effettivo stato di fatto dell’immobile. A causa delle difformità dei dati pubblicati dai vari portali, la società HouseTree S. p. A. declina ogni responsabilità per eventuali involontarie incoerenze.
Classe Energetica
- Classe energetica: E
- Indice globale di rendimento energetico: 151.95
- Indice di rendimento dell'energia rinnovabile: 151.95
- A+
- A
- B
- C
- D
- 151.95 | Classe energetica EE
- F
- G
- H
- 0521508034
- sanlazzaro@grandiagenzie.it
- Via Emilia Est, 31/a, 43121 Parma PR
Invia una richiesta per questo immobile
Scopri altre soluzioni simili
