- Home
- Salsomaggiore Terme
- Un Hotel di Charme nel Cuore del Benessere
Un Hotel di Charme nel Cuore del Benessere
- €1,300,000
Un Hotel di Charme nel Cuore del Benessere
- €1,300,000
Panoramica
Descrizione
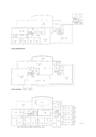
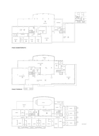
In un territorio famoso per le sue acque termali e per il richiamo naturale al benessere, sorge una struttura alberghiera che incanta già al primo sguardo. È un luogo dove storia, cura e relax si intrecciano, trasformando ogni angolo in un’esperienza da vivere e da investire. Qui il potenziale è evidente: la dimensione termale non è solo un servizio, ma il cuore pulsante dell’intera proposta. Gli ospiti vengono accolti da una Hall ricca di dettagli affascinanti, un ambiente che racconta il passato con eleganza e invita subito alla calma. Le camere, ristrutturate e in ottimo stato, offrono comfort immediato e la possibilità di avviare l’attività senza ulteriori interventi. All’esterno, una splendida piscina permette di vivere momenti di relax immersi nel silenzio, mentre all’interno la piscina riscaldata con vista sulle colline regala un’esperienza unica in ogni stagione, amplificando il valore della componente termale. La struttura ospita anche un appartamento ristrutturato recentemente, perfetto per chi desidera vivere sul posto e gestire l’hotel con presenza e comodità, circondato ogni giorno dall’atmosfera suggestiva che questo luogo sa regalare. Con classe energetica D e uno stato complessivo impeccabile, l’intero complesso si presenta come un’opportunità concreta e affascinante per chi cerca un investimento nel mondo del benessere termale, un settore in costante crescita. Un’occasione rara, capace di unire fascino, funzionalità e un immediato potenziale di valorizzazione. RIF. FID-EM-1300-PANDOS Grandi Agenzie é un brand del gruppo HouseTree S.p.A, un’azienda che mette al centro la casa e tutti i servizi collegati, operando con particolare attenzione alla sostenibilità ambientale, all’efficientamento energetico e al consumo responsabile delle risorse. IMPORTANTE: Si precisa che le descrizioni sopra riportate non rappresentano alcun impegno contrattuale. Si avvisa inoltre la spettabile clientela che le caratteristiche tecniche, la disposizione interna e gli accessori indicati potrebbero, in alcuni casi, differire dall’effettivo stato di fatto dell’immobile. A causa delle difformità dei dati pubblicati dai vari portali, la società HouseTree S.p.A. declina ogni responsabilità per eventuali involontarie incoerenze.
- 0524401190
- fidenza@grandiagenzie.it
- Via Antonio Gramsci, 1c, 43036 Fidenza PR
Invia una richiesta per questo immobile
Scopri altre soluzioni simili
- €110,000
- €88,000
- €130,000
- €380,000
- €150,000
- €580,000
