Uno spazio su misura per te!
- €360,000
Uno spazio su misura per te!
- €360,000
Panoramica
Descrizione
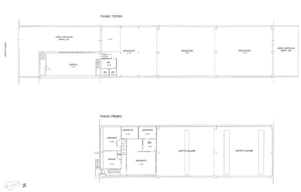
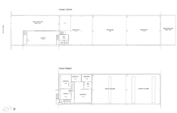
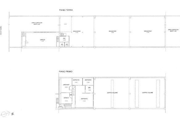
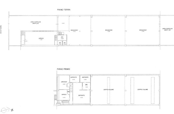
RIF. PR-GA-AZ-ViaSardi360-RS Se cerchi uno spazio funzionale e rappresentativo per la tua attività, proponiamo capannone di circa 820 mq, sviluppato su più livelli, pensato per unire operatività, organizzazione e immagine aziendale. Al piano terra trovi un ampio open space perfetto per produzione, laboratorio o magazzino, completo di bagni e spogliatoi per il personale. Il piano rialzato/ammezzato è dedicato a un locale ideale come showroom o area espositiva, mentre al piano superiore sono presenti uffici, archivio e deposito, per gestire al meglio la parte amministrativa della tua impresa. Il riscaldamento autonomo con soffioni garantisce comfort durante tutto l’anno. A completare la proprietà, un cortile interno privato con circa 6 posti auto, comodo per dipendenti e clienti. Una soluzione versatile, adatta a imprese produttive, artigianali, commerciali o di servizi che desiderano crescere in uno spazio ben strutturato e facilmente organizzabile. Contattaci per maggiori informazioni o per organizzare una visita al num. 375/6228916 RIF. PR-GA-AZ-ViaSardi360-RS Grandi Agenzie è un brand del gruppo HouseTree SPA un’azienda che mette al centro la casa e tutti i servizi collegati, operando con particolare attenzione alla sostenibilità ambientale, all’efficientamento energetico e al consumo responsabile delle risorse. IMPORTANTE: Si precisa che le descrizioni sopra riportate non rappresentano alcun impegno contrattuale. Si avvisa inoltre la spettabile clientela che le caratteristiche tecniche, la disposizione interna e gli accessori indicati potrebbero, in alcuni casi, differire dall’effettivo stato di fatto dell’immobile. A causa delle difformità dei dati pubblicati dai vari portali, la società HouseTree SPA declina ogni responsabilità per eventuali involontarie incoerenze.
- 0521200956
- oltretorrente@grandiagenzie.it
- D'Azeglio, 120/a, Parma, 43125 PR
Invia una richiesta per questo immobile
Scopri altre soluzioni simili
