VALMARANA – Villa singola con giardino esclusivo

  • €650,000

VALMARANA – Villa singola con giardino esclusivo

  • €650,000

VALMARANA – Villa singola con giardino esclusivo

  • €650,000
Villa

VALMARANA – Villa singola con giardino esclusivo

  • €650,000
VI-EBV186

Panoramica

2
2
255
270
2025

Descrizione

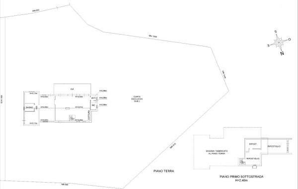
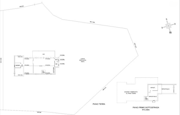
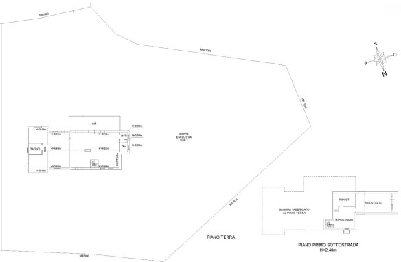
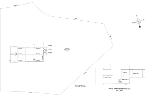
In splendida posizione collinare immersa nel verde di Valmarana, proponiamo in vendita una villa singola di 260 mq circondata da 6.000 mq di giardino privato e area verde non edificabile. Una proprietà esclusiva, perfetta per chi desidera vivere nella natura con il massimo della riservatezza, a pochi minuti dai principali servizi. — La villa, completamente indipendente, si distingue per la cura dei dettagli e la qualità costruttiva. Gli spazi interni si articolano in due unità collegate tra loro: la parte originaria, calda e accogliente, e l’ampliamento di recente realizzazione, moderno e luminoso. La zona giorno offre un ampio living con camino e cucina in marmo, ideale per momenti conviviali e di relax. Le camere sono spaziose, alcune con soppalco, e i bagni finestrati completano la funzionalità degli ambienti. Nella nuova area troviamo un’elegante zona open space con cucina a vista e accesso diretto al giardino, mentre al piano inferiore una grande cantina finestrata, collegata internamente, offre tre locali versatili, perfetti come taverna, studio o area wellness. Le finiture rispecchiano l’attenzione al comfort e all’efficienza: pavimenti in legno e marmo, infissi di ultima generazione in PVC effetto legno con doppio vetro e zanzariere, riscaldamento misto a pavimento e radiatori con caldaia a condensazione, predisposizione per climatizzazione e isolamento con cappotto integrato. L’immobile è in classe energetica A1. All’esterno, il portico ospita tre posti auto coperti, con possibilità di realizzare un garage grazie all’ampia area esterna. La posizione, esposta su quattro lati e completamente immersa nella quiete, regala luce, silenzio e panorami suggestivi in ogni stagione. — Una villa che unisce natura, design e comfort moderno: la soluzione ideale per chi cerca indipendenza, spazi generosi e una vita lontana dal rumore, ma vicina a ogni comodità. Contatta l’agenzia al tel. 0444 305077 per maggiori informazioni.

Classe Energetica

  • Classe energetica: A1
  • A+
  • A
  • B
  • C
  • D
  • E
  • F
  • G
  • H

Invia una richiesta per questo immobile

Scopri altre soluzioni simili

  • €158,000
Appartamento
3
2
255
105
  • €58,000
Appartamento
1
1
1
52
  • €320,000
Casa indipendente
6
2
2
377
  • €238,000
Villa a Schiera
3
2
255
199
  • €245,000
Casa indipendente
255
308

Compare listings

Compare

PARMA - Se cerchi la tranquillità del verde, ma non vuoi rinunciare alla comodità della città.