- €50,000
Panoramica
Descrizione
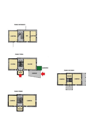
Rif. Trento-FC2-50 Se pensi che il caldo afoso della città sia solo un lontano ricordo ti stai sbagliando: tra pochi mesi ti ritroverai ad affrontare lo stress di lunghi pomeriggi e di infinite serate prigioniero dell’aria condizionata. E se quest’estate fosse diversa? Se avessi una grande casa perfetta da godere nei week end e in tutto il tuo tempo libero? Una casa che grazie alla posizione comoda e facilmente raggiungibile da Parma potrai sfruttare anche in inverno e in ogni momento dell’anno. Nei suoi 177 mq potrà diventare il luogo di ritrovo della tua famiglia! In località Zibana, a pochi minuti da Palanzano e dai suoi servizi, grande terratetto semi indipendente sviluppato su tre livelli oltre al piano semi interrato, e composto da ingresso, salone con camino, cucina abitabile, quattro grandi camere, due bagni, due logge, autorimessa e giardinetto di 20 mq circa, con un’incantevole vista panoramica sulla vallata circostante. Un vero e proprio rifugio fatto di quiete, silenzio e natura. L’abitazione necessita di interventi di ristrutturazione sia interni che esterni, ma la grande convenienza del prezzo ti consentirà di creare davvero tutto quello che desideri. Quest’anno non perdere l’opportunità di trascorrere un’estate diversa da tutte le altre! Chiama ora e fissa la tua consulenza! Per informazioni chiama lo 0521 271888 oppure il cellulare diretto 346 8243771, indicando il riferimento annuncio o l`indirizzo dell`immobile. Grandi Agenzie é un brand del gruppo HouseTree SPA, un’azienda che mette al centro la casa e tutti i servizi collegati, operando con particolare attenzione alla sostenibilità ambientale, all’efficientamento energetico e al consumo responsabile delle risorse. IMPORTANTE: Si precisa che le descrizioni sopra riportate non rappresentano alcun impegno contrattuale. Si avvisa inoltre la spettabile clientela che le caratteristiche tecniche, la disposizione interna e gli accessori indicati potrebbero, in alcuni casi, differire dall’effettivo stato di fatto dell’immobile. A causa delle difformità dei dati pubblicati dai vari portali, la società HouseTree SPA declina ogni responsabilità per eventuali involontarie incoerenze.
Classe Energetica
- Classe energetica: G
- Indice globale di rendimento energetico: 175.00
- Indice di rendimento dell'energia rinnovabile: 175.00
- A+
- A
- B
- C
- D
- E
- F
- 175.00 | Classe energetica GG
- H
- 0521271888
- sanleonardo@grandiagenzie.it
- Via Trento, 42, 43100 Parma PR
Invia una richiesta per questo immobile
