Residenza di rappresentanza in palazzo storico
- €348,000
Panoramica
Descrizione
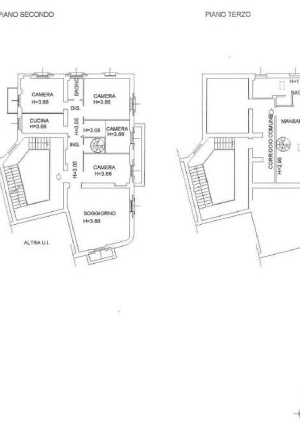
Rif: PR-GA-TR-LV-vialetoschi-348 Titolo: Residenza di rappresentanza in palazzo storico alle spalle del centro. Una proprietà così non si limita ad accogliere una famiglia. La rappresenta. In Viale Paolo Toschi, alle spalle del centro storico di Parma, all’interno di un elegante palazzo storico del 1929 sottoposto a vincolo dei Beni Culturali, presentiamo una residenza di prestigio di 211 mq sviluppata su due livelli, al secondo piano più mansarda, senza ascensore. Un immobile raro, importante, luminosissimo, esposto su quattro lati e pensato per chi desidera una casa che abbia carattere, rappresentanza e una personalità impossibile da replicare nei contesti moderni tutti uguali. Il grande soggiorno è il cuore scenografico dell’abitazione: ampio, arioso, impreziosito da pavimenti in marmo, soffitti alti, grandi finestre, luce naturale e dettagli classici che raccontano un’eleganza autentica, mai ostentata. È lo spazio perfetto per ricevere, vivere momenti di famiglia, accogliere ospiti e godersi una quotidianità che ha il sapore delle dimore di un tempo, con una raffinatezza concreta e ancora attualissima. Il resto della distribuzione interna offre ambienti generosi e ben separati: una cucina abitabile, tre camere matrimoniali, una camera singola, due bagni, tre balconi. Una casa pensata per una famiglia che non vuole scendere a compromessi tra spazio, comodità e prestigio. Qui ogni membro può avere il proprio ambiente, ogni esigenza trova il suo posto, ogni giornata può scorrere con quella libertà che solo le metrature importanti sanno offrire. La mansarda aggiunge ulteriore valore e versatilità: uno spazio riservato, intimo e funzionale, ideale come studio, zona hobby, area ospiti, stanza per ragazzi o ambiente privato da vivere secondo le proprie esigenze. Perché una casa davvero importante non deve solo essere bella: deve anche saper accompagnare la vita reale, quella fatta di lavoro, famiglia, passioni e occasioni da condividere. A completare la proprietà troviamo una grande cantina finestrata e la possibilità di utilizzare il posto auto condominiale (uno per abitazione, non assegnato). L’immobile si presenta in buono stato, è già libero, climatizzato, dotato di riscaldamento autonomo e doppi vetri. Una residenza classica, sofisticata, solida, con il fascino delle dimore storiche e la praticità di una posizione strategica, a pochi passi dal centro e dai principali servizi. Non è la casa per chi cerca semplicemente “un appartamento grande”. È la casa per chi riconosce il valore dell’unicità, della storia, dello spazio vero e di un indirizzo che parla ancora prima di essere raccontato. Se senti che questa potrebbe essere la base giusta per il tuo prossimo passo, non aspettare: contattaci. Contattaci subito e fissa la tua consulenza Per informazioni chiama il 375/6150682 (cellulare diretto) oppure in filiale al numero 0521 271888, indicando il riferimento annuncio o l`indirizzo dell`immobile. Grandi Agenzie è un brand del gruppo HouseTree SPA, un’azienda che mette al centro la casa e tutti i servizi collegati, operando con particolare attenzione alla sostenibilità ambientale, all’efficientamento energetico e al consumo responsabile delle risorse. IMPORTANTE: Si precisa che le descrizioni sopra riportate non rappresentano alcun impegno contrattuale. Si avvisa inoltre la spettabile clientela che le caratteristiche tecniche, la disposizione interna e gli accessori indicati potrebbero, in alcuni casi, differire dall’effettivo stato di fatto dell’immobile. A causa delle difformità dei dati pubblicati dai vari portali, la società HouseTree SPA declina ogni responsabilità per eventuali involontarie incoerenze.
Classe Energetica
- Classe energetica: G
- Indice globale di rendimento energetico: 175.00
- Indice di rendimento dell'energia rinnovabile: 175.00
- A+
- A
- B
- C
- D
- E
- F
- 175.00 | Classe energetica GG
- H
- 0521271888
- sanleonardo@grandiagenzie.it
- Via Trento, 42, 43100 Parma PR
Invia una richiesta per questo immobile
