VIALE MILANO: MINIAPPARTAMENTO RISTRUTTURATO IN CLASSE A1
- €80,000
VIALE MILANO: MINIAPPARTAMENTO RISTRUTTURATO IN CLASSE A1
- €80,000
Panoramica
Descrizione
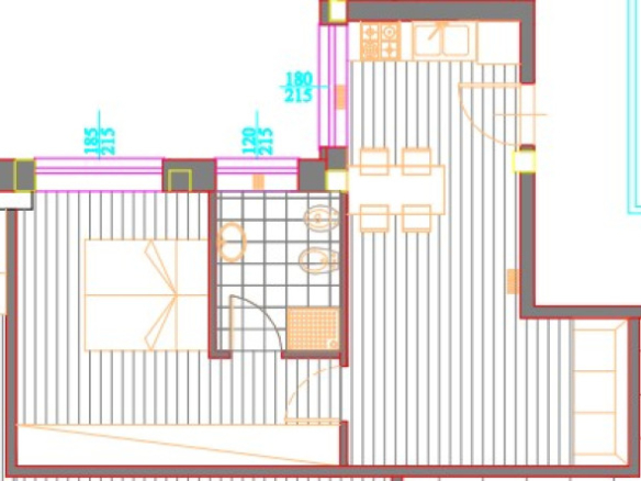
In Viale Milano, a due passi dalla stazione e dal centro storico, in condominio in classe energetica A1, già ristrutturato con cappotto nanotecnologico e pannelli fotovoltaici, proponiamo la vendita di un elegante bilocale di circa 40 mq in fase di ristrutturazione interna. La posizione strategica rende l’immobile ideale per chi cerca una soluzione abitativa comoda e ben collegata, o un investimento sicuro da mettere a reddito. — Ci troviamo al primo piano, servito da ascensore, in un elegante condominio degli anni 60 molto ben tenuto e amministrato. L’appartamento è in fase di ristrutturazione interna con finiture moderne e materiali che garantiscono un’efficienza termica ottimale. Gli spazi sono ampi e molto luminosi; ogni dettaglio è curato affinché possiate godere al meglio della vostra nuova casa o del vostro investimento. L’unità verrà consegnata finita, pronta per essere abitata o affittata, entro l’estate 2026. — Il quartiere non solo offre comodità nei trasporti pubblici ma vanta anche vicinanza a negozi, ristoranti e servizi essenziali. Non lasciarti sfuggire questa occasione! Contattaci in agenzia al tel. 0444 305077 per ulteriori informazioni o per fissare una visita all’immobile!
Classe Energetica
- Classe energetica: A1
- A+
- A
- B
- C
- D
- E
- F
- G
- H
- 0444305077
- vicenza@grandiagenzie.it
- Corso Santi Felice e Fortunato, 257/s, 36100 Vicenza VI
Invia una richiesta per questo immobile
Scopri altre soluzioni simili
- €320,000
- €250,000
- €238,000
- €245,000
- €149,000
- €143,000
