ZONA STADIO: MINI RISTRUTTURATO CON CANTINA
- €125,000
ZONA STADIO: MINI RISTRUTTURATO CON CANTINA
- €125,000
Panoramica
Descrizione
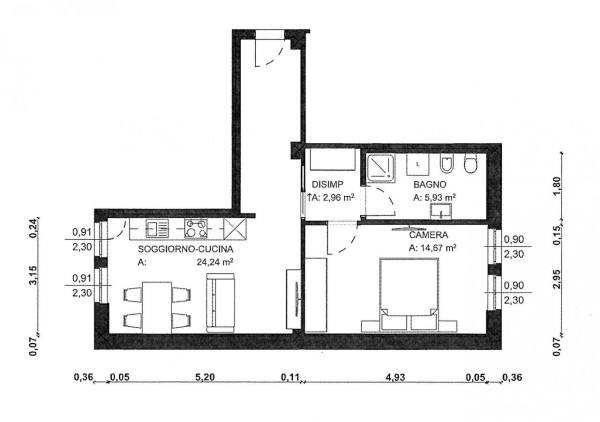
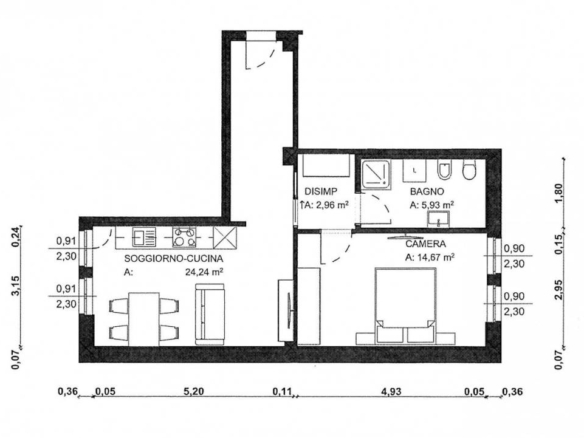
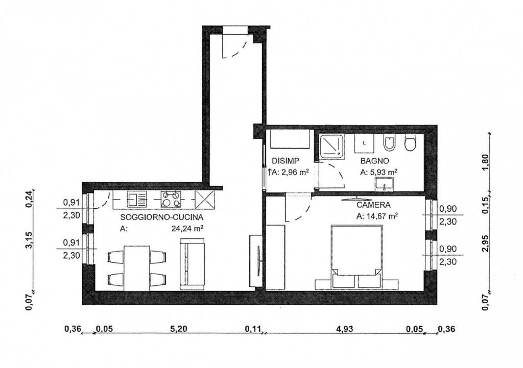
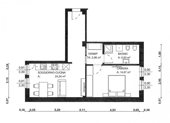
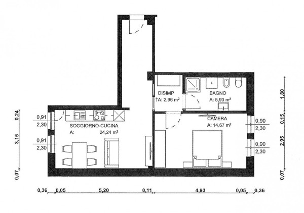
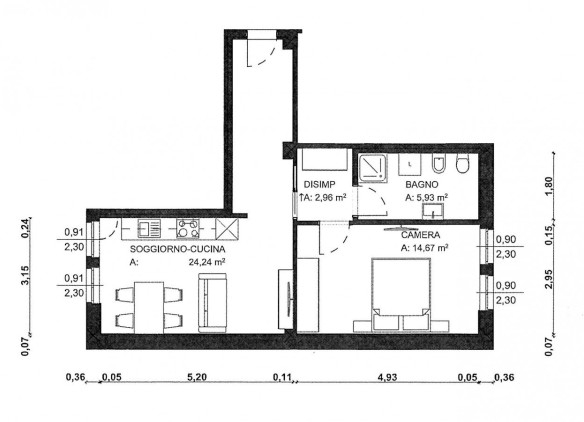
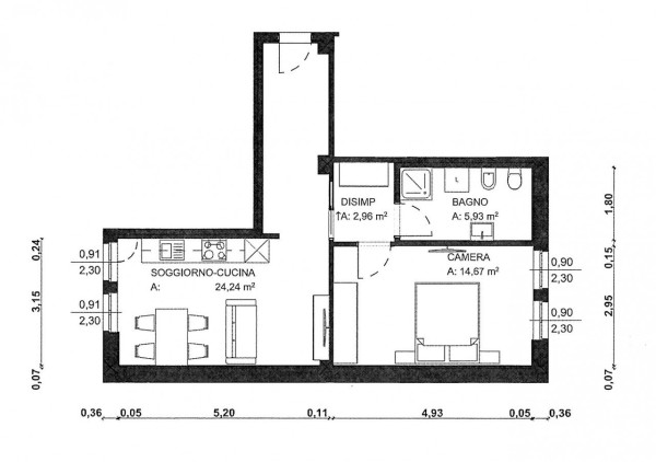
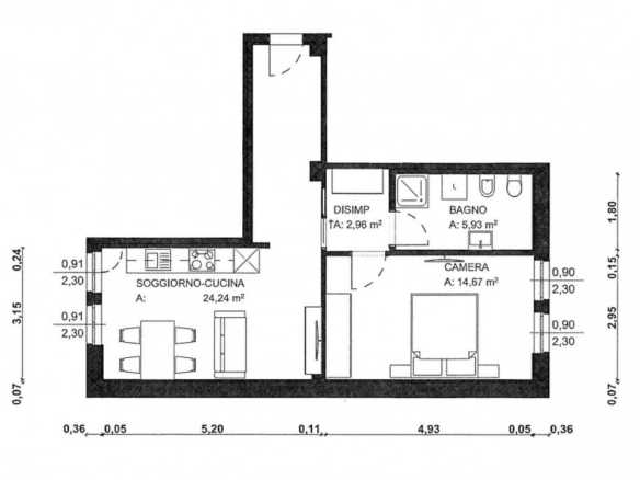
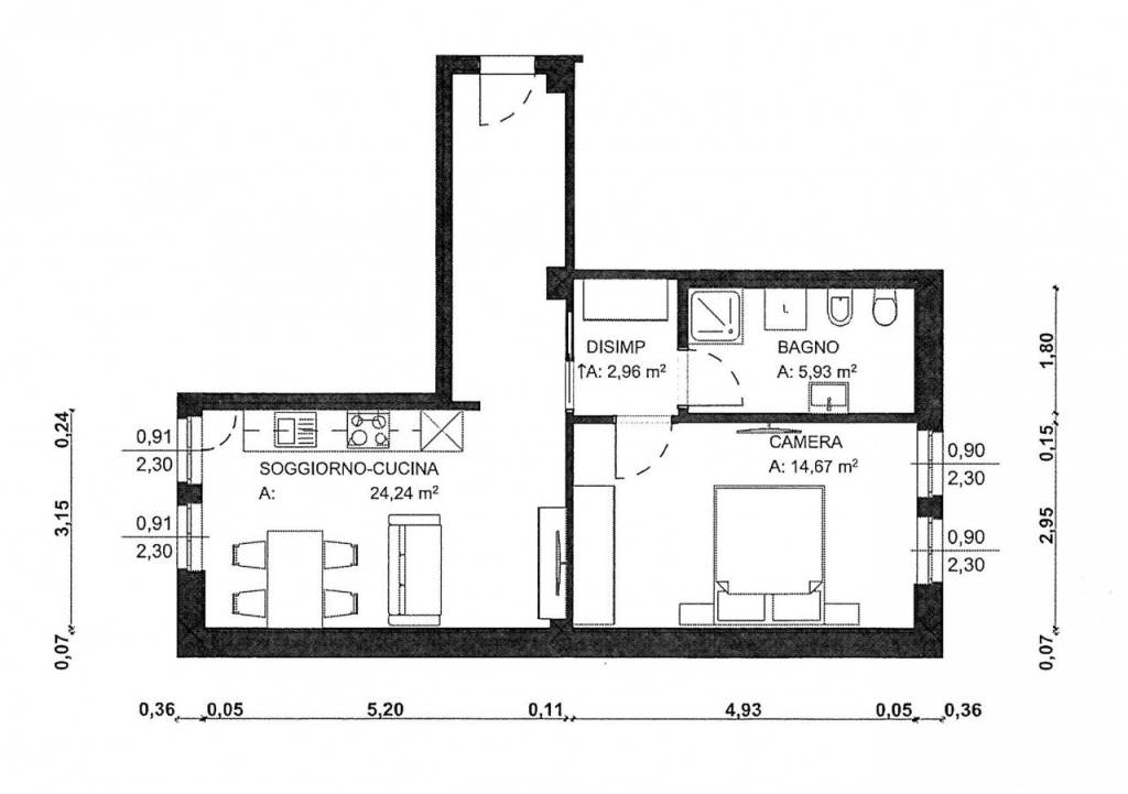
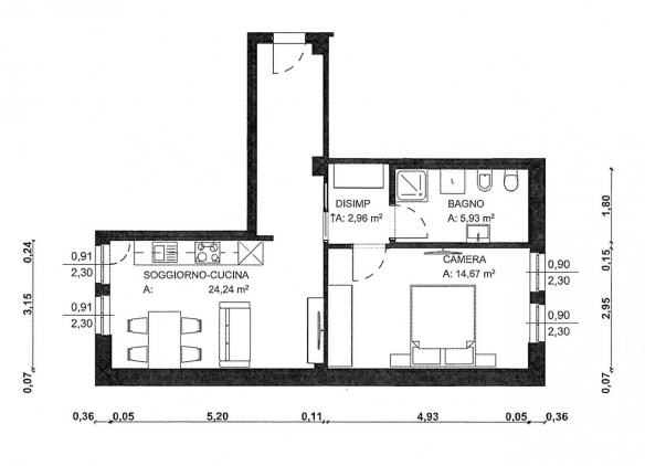
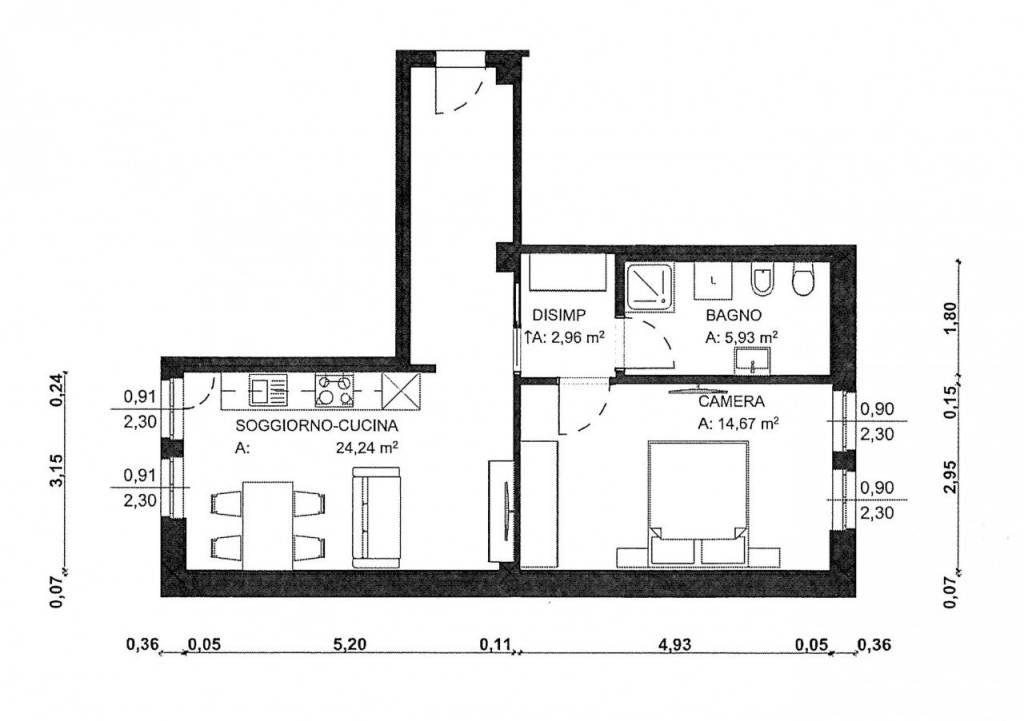
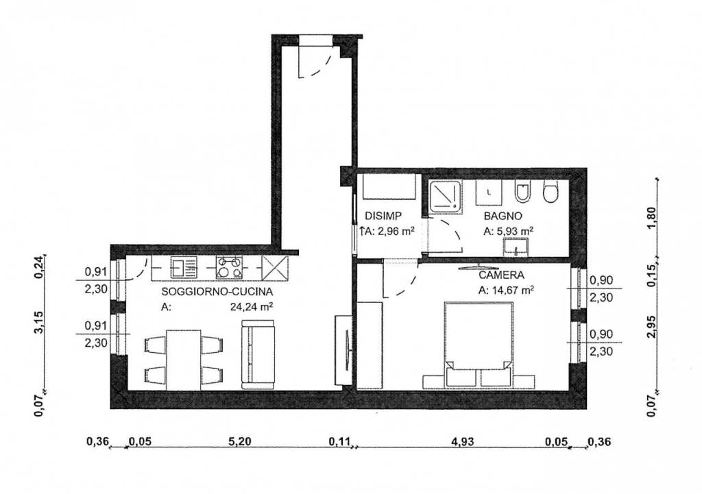
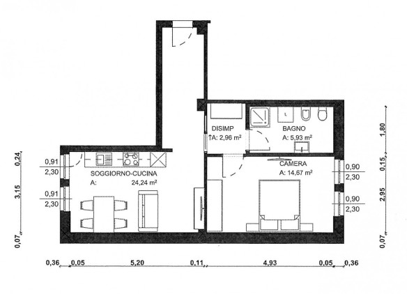
Tra viale Margherita e corso Padova, in zona interna lontana dal traffico, proponiamo la vendita di un luminoso miniappartamento al primo piano servito da ascensore in condominio anni 70 signorile e ben tenuto. L’appartamento è stato oggetto di una ristrutturazione interna con efficientamento energetico, appena terminata, che ha riguardato pavimenti, rivestimenti, serramenti interni ed esterni, climatizzatore, impianto idrico e impianto elettrico. Si compone di corridoio di ingresso, soggiorno con angolo cottura con affaccio interno sul piacevole giardino condominiale, un ampio disimpegno con la possibilità di ricavare un capiente armadio/ripostiglio, un bagno spazioso con doccia e una camera matrimoniale. Al piano terra, tramite comodo accesso dalla strada, completa la proprietà un’utilissima cantina privata in cui è possibile anche parcheggiare biciclette o monopattini. Classe energetica B. Il riscaldamento è a radiatori con termovalvole e caldaia centralizzata sostituita nel 2017. Il condominio è ben tenuto e ben abitato. Le spese condominiali ammontano a circa 40 euro al mese (consumi esclusi). — E’ la soluzione perfetta come abitazione o come investimento. E’ situato in una posizione strategica data la vicinanza all’università, all’ospedale, al tribunale e al centro storico, è comodo a tutti i servizi e a tutte le linee di autobus, corriere e alla stazione ferroviaria. Distanze: 300 m dalla più vicina fermata dell’autobus 500 m dalla fermata delle principali linee di autobus e corriere 600 m da piazza Matteotti 700 m dall’università in viale Margherita 1,5 km dall’ospedale S. Bortolo 1,7 dalla stazione FFSS — Rif.: FFV114 Per informazioni chiamare in ufficio 0444 305077
Classe Energetica
- Classe energetica: B
- A+
- A
- | Classe energetica BB
- C
- D
- E
- F
- G
- H
- 0444305077
- vicenza@grandiagenzie.it
- Corso Santi Felice e Fortunato, 257/s, 36100 Vicenza VI
Invia una richiesta per questo immobile
Scopri altre soluzioni simili
- €158,000
- €58,000
- €320,000
- €250,000
- €238,000
- €245,000
